9月2日,老城区首个改善型住宅项目“毓澜园”正式开工建设。作为市城投leyu(中国)独立自主开发楼盘,该项目融合现代居住美学与百年建筑智慧,致力打造“建筑结构百年、居住功能百年、设备管线百年”的珍藏级府邸,进一步丰富房地产市场供给体系,改善提升老城区人居环境。

老城芯黄金坐标,全维配套触手可及
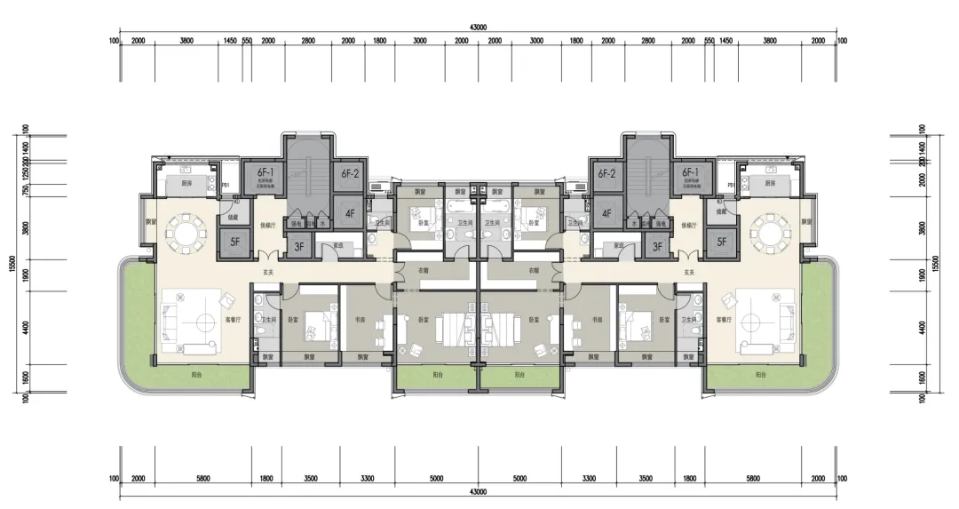
该项目位于解放路西侧、毓龙路北侧,占地约22.7亩,总建筑面积约3.5万平方米,规划建设7栋住宅及1栋商业配套。项目坐拥老城芯优质资源,南邻北金鹰、中茵海华商业中心与盐城第三人民医院,北接江苏省盐城中学,西靠毓龙路实验学校,真正实现“教育、医疗、商业”一步到位的理想生活。

稀缺户型首发,重新定义高端改善标准
天幕平层:以一席宽幕,收藏一城风景
以“一层一世界”的稀缺格局打造,配备双梯专户与私属电梯前厅。约22.4米巨幕面宽,贯通四大南向功能空间;约5.8米客厅与餐厅共同构成约6.3米挑空双厅,视野开阔恢弘。主卧套房开间达5.3米,配备双衣帽间与四件套豪华卫浴。中西双厨设计(封闭中厨+岛台西厨),从容演绎高品质家庭生活场景。

E墅:270°环幕视界,演绎垂直生活秘境
以“地上生活场+地下志趣场”构筑双层立体生活空间,电梯独立入户。私家庭院与地下室全赠送,约21米南向环幕面宽实现超90%空间采光。端厅式客厅带来270°环幕视野,主卧套房配置约8㎡定制更衣间与五件套奢阔卫浴(双台盆+独立浴缸+淋浴间+智能马桶+观景明窗)。全套房设计契合多代同堂,地下室预留灵活多功能区,重新诠释现代墅居体验。

市城投leyu(中国)将秉承匠心精神,严控工程品质、全力推进建设进度,力争早日完美交付,为盐城敬献一座可传承、可珍藏的百年梦想居所。

